Kildetunet har fått god respons: -Vi forventer at vi skal løse flere salg framover
Byggingen av Kildetunet er godt i gang. Nå er det kun noen få leiligheter igjen til salgs av byggetrinn 1.
– Interessen har vært godt i prosjektet og vi forventer at vi skal løse flere salg fremover. Det er naturlig at det i en periode nå blir litt roligere i markedet når det er solgt såpass mange nye leiligheter i Løten sentrum, sier eiendomsmegler Stein Olav Engebakken til mittLØTEN, etter at han i dag har solgt enda en leilighet i Kildetunet.
Skal være et godt sted å bo
Det er Løiten Almenning som, i samarbeid med Petter Johnsrud, står for utbyggingen av Kildetunet. De første blokkene som bygges består av to- og treroms leiligheter fra 43 til 85 kvadratmeter. Prisene på leilighetene varierer fra 1.790.000 kroner til 4.250.000 kroner, hvorav den sist solgte var i det øvre prissjiktet.

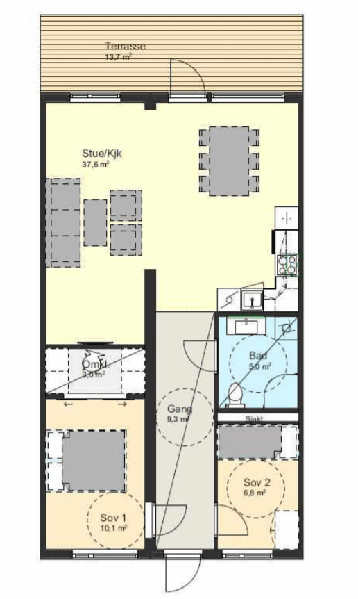
Leilighetene har ifølge Eiendomsmegler1 sosial og moderne planløsning med åpen stue/kjøkken, heis, parkeringskjeller, egen balkong/terrasse, flislagte bad og store vinduer. Oppvarming vil skje med tilknytning til fjernvarmeanlegget.
– Vannbåren varme er en meget behagelig, energieffektiv og ikke minst miljøvennlig oppvarmingskilde. Det vil bli installert målere i hver enkelt leilighet, slik at hver seksjonseier betaler basert på eget forbruk, heter det fra beskrivelsen av leilighetene.

Første byggetrinn er planlagt ferdig i april 2021.
– Byggestart på trinn 2 blir vedtatt når forhåndssalget er tilfredsstillende, det vil si cirka 50 %, opplyser Engebakken.